DesigNow DesigNow

Remodelación entrada The Station

Image
Proyecto

Remodelación entrada The Station

Se desarolló la remodelación de la entrada del local principal de The Station.


ESTADO: Finalizado

Daniel Ronderos


Página de contacto

Se realizó una reunión entre diseñador y cliente para establecer un boceto inicial. Se extrae lo siguiente: Image

Se establece que se desean medidas mas especificas para la puerta de entrada y se debe esperar a recibir indicaciones del arquitecto para poder avanzar

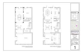
El diseñador registra un avance importante en el diseño arquitectonico de la entrada y las demas partes solicidas por el cliente para el local a remodelar. Se evidencia el registro:

Image

Actualización: Se realiza una reunion para solucionar dudas del cliente sobre el avance y se establece una fecha de entrega final.

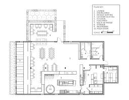
Se realiza entrega al cliente del producto de diseño final. Este se compone de 3 vistas diferentes del diseño interior de la entrada y otros espacios del local principal de The Station.

Image

Ademas, se hace entrega de diferentes archivos descriptivos e ilustrativos de todo el proceso. La información completo la encuetra aqui:

Descargar

Copyright © All rights reserved | This template is made with by TeamRocket